Remains Recovered from Mt. Carmel: Roof of Concrete Room

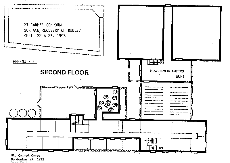
According to the Treasury Report, pg. 47, the original floor plan of Mt. Carmel upon which this diagram is based was drawn from memory by a former resident of Mt. Carmel, David Block. That diagram is on exhibit in the War Gallery as War: Dumb Diagram of Mt. Carmel: Second Floor.

This diagram was obtained from Judge James Collier, Justice of the Peace, Precinct 2, McLennan County, Texas, and is part of the official record. Other official diagrams recording the location of Davidian bodies include:

For the visitor's convenience, this diagram has been coded as a click-map, providing direct links to the autopsies of the remains allegedly found in each location.

 

Back: Death Gallery Entrance
Home: Museum Entrance
Search: Museum Text


Many people who distrust the mainstream media have turned to alternate news sources, some of which are Internet based.  Unfortunately, many of these alternate sources of news simply promote an alternate series of lies.  These alternate lies are of course dressed up as "exposés."  But you can easily tell the phonies from the real thing.  The information in the Waco Holocaust Electronic Museum is an acid test.

Does your news source promote Mike McNulty's video, Waco: The Rules of Engagement or wring its hands because the Davidian law suit against the government failed?  (See Waco Documentary Is A Hoax! and Waco Suits for Waco Suckers.) Does your alternate news source carry promotional pieces about rebuilding the Davidian church in Waco and mouth nice words about "healing"?  (See The Cover-up Church.)

Remember, since ancient times, inquiries into questionable deaths have started with the bodies of the victims.  If your news source won't give you an honest and full account of the forensic information on Waco, or if it does not have a link to the Waco Holocaust Electronic Museum ... your alternate news has failed a fundamental acid test.   


Published by Public Action, Inc, a news and news analysis service. All commercial rights are reserved. A full statement of terms and conditions for copying and redistribution is available in the Museum Library. "Waco Holocaust Electronic Museum," "SkyWriter," and the sky writing logo are trademarks of Public Action, Inc. To receive occasional dispatches on Waco issues, write to Curator@Public-Action.com and put SUBSCRIBE in the subject line.

http://www.Public-Action.com/SkyWriter/WacoMuseum
or http://206.55.8.10/SkyWriter/WacoMuseum
Curator@Public-Action.com

All original material is copyright 1996-2000 by Carol A. Valentine, on loan to Public Action, Inc.
Postal Address: Carol A. Valentine, PO Box 10933, Burke, VA 22009

This page last updated February 28, 2001.

This Page is mirrored courtesy of Web Alaska